Projekt ogrodu rustykalnego.
Ogród o sielankowym charakterze.
- Lokalizacja: Zielonka, kujawsko-pomorskie
- Powierzchnia: 602m2
- Typ domu: Wolnostojący, parterowy z poddaszem
- Styl domu: Tradycyjny
- Wytyczne klienta: przytulny, dużo naturalnych materiałów (drewno), rustykalny lub śródziemnomorski styl, nasadzenia bez uczulających traw (alergia wziewna), palenisko, miejsce do zabaw dla dzieci.
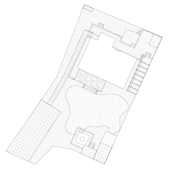
Projektowany ogród ma być fuzją stylu rustykalnego ze śródziemnomorskim. Podzielony został na kilka stref użytkowych: plac zabaw, strefa sauny, pergola ze strumieniem wodnym, palenisko z wyniesionym leżyskiem, domek na narzędzia oraz szklarnia. Całość okalają bujne nasadzenia z bylin pomijając gatunki wiechlinowate (trawy).
PLAC ZABAW
Plac zabaw z naturalnych materiałów stwarza przyjemny dla oka zakątek, który nie zaburza porządku całego ogrodu, ale jednocześnie daje dzieciom przestrzeń do zabawy. Zaprojektowano piaskownicę o powierzchni niemalże 10 m², która jest zarówno bezpiecznym elementem, a także namawia do kreatywnej zabawy.
SAUNA, PERGOLA I STRUMIEŃ WODNY
Strefa sauny ma być wzbogacona o ławkę w celu umożliwienia relaksu po wyjściu z sauny. Ta sama ławka może również posłużyć do pilnowania dzieci bawiących się na placu zabaw. Widok z sauny otwiera się na tunel z drewnianych pergoli porośniętych winobluszczem. Będzie to wyjątkowym rozwiązaniem, który nada ogrodowi przytulny charakter. Winobluszcz stanowi schronienie dla dzikiego ptactwa co sprawi, że ogród stanie się także miejscem do podziwiania natury. Dodatkowo umieszczono poniżej strumień wodny, który to ma stanowić atrakcję dla dzieci – puszczanie statków, lecz także cieszyć oczy i uszy starszych użytkowników.
PALENISKO I DREWNIANA LEŻANKA
Palenisko otoczone drewnianymi siedziskami, zdobione cegłą licową, staje się sercem przestrzeni. Ciepło płomieni zaprasza do wspólnych chwil pod gwiazdami – czy to z książką, czy w gronie przyjaciół. Tuż obok, drewniana leżanka przypominająca domek na drzewie, delikatnie wznosi się nad ziemią. To idealne miejsce na chwilę relaksu z widokiem na płomienie i wyjątkowa atrakcja dla małych pociech.
DOMEK NA NARZĘDZIA I SZKLARNIA
Drewniany domek na narzędzia w stylu francuskim, niczym wyjęty z malowniczego zakątka Prowansji, dodaje całości wyjątkowego uroku. Właścicielom działki zależało również na funkcjonalnym aspekcie ogrodu jakim jest szklarnia do uprawy warzyw i ziół. Mimo tego, że przestrzeń nie jest zbyt duża udało się to marzenie o własnej, zdrowej żywności spełnić.
TARAS
Budynek jest wyniesiony w stosunku do wysokości podjazdu o 0,4m. W związku z tym konieczne było utworzenie murków oporowych oraz skarp dookoła. Murki oporowe z kamienia naturalnego oraz taras z naturalnego kamienia o piaszczysto-kamiennych barwach idealnie podkreślą klimat śródziemnomorski. Skarpy dookoła tarasu obsadzono bujnymi bylinami kwitnącymi, aby stworzyć imitujące naturalne skupisko roślin.
PODJAZD I FRONT DOMU
Podjazd zostanie wykonany z ciemnej kostki brukowej. Ma szerokość 5m co pozwoli na zaparkowanie na nim minimum dwóch aut. Front domu i ścieżka do niego prowadząca ma być otoczona rabatami z bylin na wyniesionych murkach oporowych w stylu śródziemnomorskim.


















